Wohnfläche:
138,47 m² Obergeschoss rechts
127,32 m² Obergeschoss links
112,17 m² Dachgeschoss rechts
110,97 m² Dachgeschoss links
—————————————-
488,93 m² Wohnfläche
Nutzfläche:
486,18 m² Halle und Büro
69,05 m² Lager
98,38 m² Laden
————————-
653,61 m² Gewerbefläche
Bezug:
Die Wohnungen sind alle seit vielen Jahren vermietet, das Lager (Teileigentum 02) und die Halle (Teileigentum 01) werden frei.
Grundstück:
1.232 m²
Ausstattung:
Das Objekt befindet sich insgesamt in einem gepflegten Zustand. Es ist in Eigentumswohnungen aufgeteilt, wird aber im Gesamten verkauft.
Folgende Details zeichnen das Objekt aus:
- Isolierverglaste Fenster in Kunststoffrahmen
- Laminat und Fliesen als Bodenbeläge
- Gaszentralheizung, die Warmwasserversorgung erfolgt über Elektrogeräte
- Die Wohnungen sind seit vielen Jahren an zuverlässige Mieter vermietet.
- Es gibt zwei Kellerbereiche, wobei einer ausschließlich über die Halle begangen werden kann. Im Keller unter dem Vorderhaus sind die Abstellräume der Mieter sowie die Heizungsanlage.
- Im hinteren Grundstücksbereich befinden sich fünf PKW-Garagen sowie ein überdachter Stellplatz und ein offener Stellplatz. Das Grundstück ist in Gänze versiegelt.
- Auf dem Vorderhaus ist mietpflichtig ein Funkmast installiert.
Aufteilung:
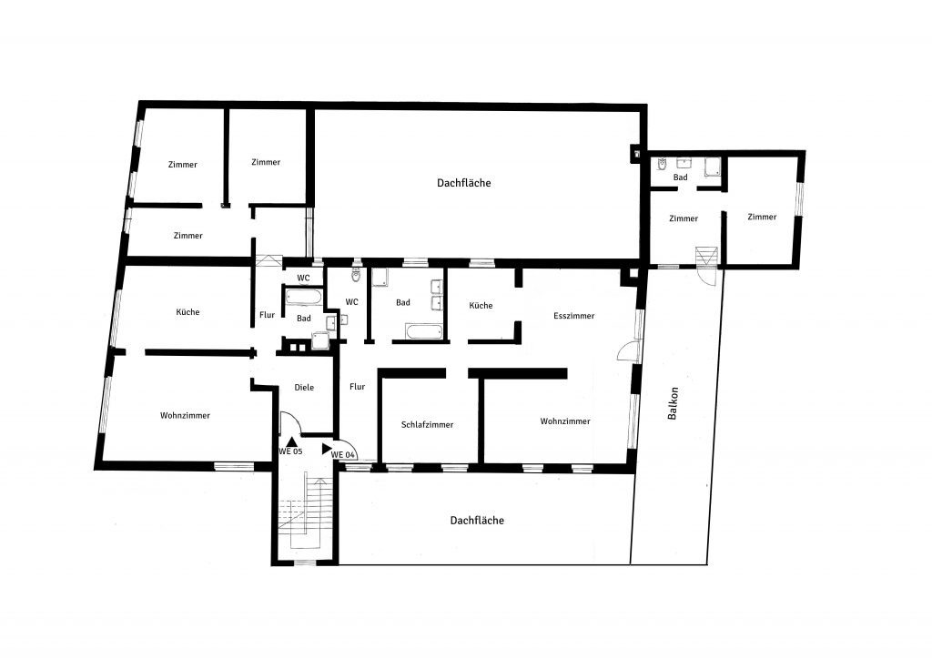
Die genaue Aufteilung entnehmen Sie bitte den Grundrissen. Für die Richtigkeit der angegebenen Maße übernehmen wir keine Haftung, sondern empfehlen im Zweifelsfall ein Aufmessen vor Ort.
Kaufpreis:
€ 1.200.000,–
Energieausweis:
Wohnen:
Verbrauchsausweis
Endenergieverbrauch: 146 kWh/(m²*a)
Energieträger Heizung: Erdgas
Baujahr des Gebäudes: 1930
Energieeffizienzklasse: E
Gewerbe:
Verbrauchsausweis
Endenergieverbrauch Heizung: 49,5 kWh/(m²*a)
Endenergieverbrauch Strom: 29,1 kWh/(m²*a)
Energieträger Heizung: Gas
Baujahr: 1930
Provision:
Die vom Käufer an uns zu zahlende Maklergebühr beträgt 3,57 % vom Kaufpreis (inkl. 19% MwSt.), fällig bei Abschluss des notariellen Kaufvertrages.









