Wohnfläche:
89 m2
Baujahr:
1964
Bezug:
Ab sofort möglich.
Grundstück:
319 m²
Ausstattung:
Diese Doppelhaushälfte wurde von den Eigentümern selbst bewohnt und stets gepflegt. Das Dachgeschoss ist zur Hälfte ausgebaut und zur
Hälfte als Speicher genutzt.
Folgende Details zeichnen das Objekt aus:
- elegante Rundtreppe mit Buchenholzstufen
- isolierverglaste Fenster in Holzrahmen mit Rollläden
- Fußböden überwiegend in Parkett und Fliesen
- Ölheizung aus 2018 (4200 l Stahltank)
- zusätzlich ein formschöner Kaminofen im Wohnzimmer (2014)
- Badezimmer im OG, WC im KG. Mit wenig Aufwand kann die
Garderobe im EG wieder zu einem WC zurückgebaut werden - Balkon in der ersten Etage mit Blick über die angrenzenden Grünflächen
- das Objekt ist voll unterkellert und verfügt über eine Kelleraußentreppe
- Terrasse mit Überdachung und direktem Zugang in den Garten
- das Grundstück ist überwiegend nach Süden ausgerichtet
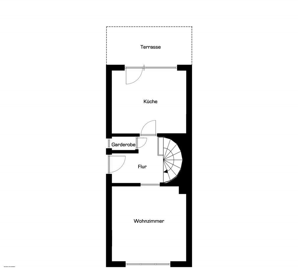
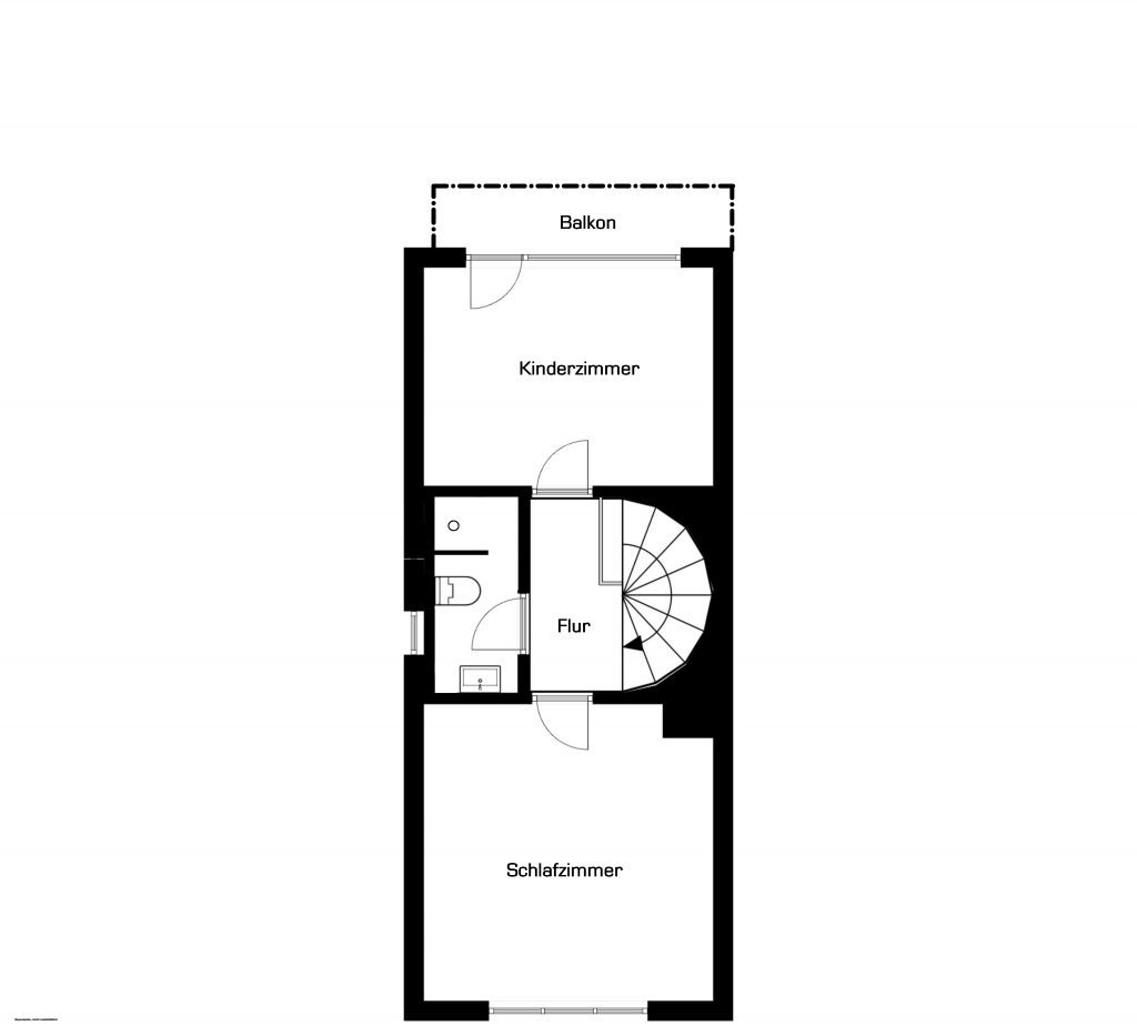
Aufteilung:
Die genaue Aufteilung entnehmen Sie bitte dem Grundriss. Für die Richtigkeit der angegebenen Maße übernehmen wir keine Haftung, sondern empfehlen im Zweifelsfall ein Aufmessen vor Ort.
Kaufpreis:
€ 455.000,–
Energiepass:
Bedarfsausweis
Endenergiebedarf, inkl. Warmwasser: 234,7 kWh/(m²*a)
Energieträger Heizung: Heizöl, Strom-Mix
Baujahr des Gebäudes: 1964
Energieeffizienzklasse: G
Provision:
Die vom Käufer an uns zu zahlende Maklergebühr beträgt 3,57 % vom Kaufpreis (inkl. 19% MwSt.), fällig bei Abschluss des notariellen Kaufvertrages.
Wir machen der Ordnung halber darauf aufmerksam, dass wir mit dem Verkäufer ebenfalls eine Provision der gleichen Höhe vereinbart haben.

















